Typ G


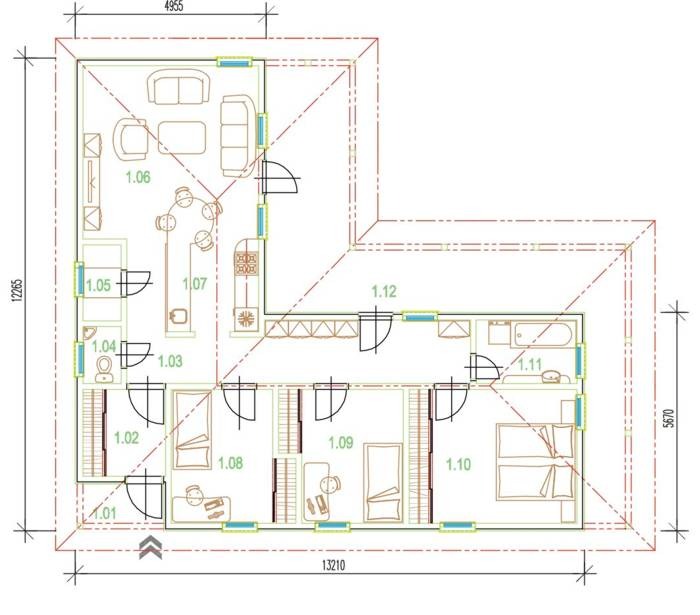
Typ G je rodinný dom prízemný tzv. bungalow. Ponúka zaujímavé riešenie priestorov a veľkú prekrytú terasu. Jeho pôdorys do tvaru L uľahčuje vyber zákazníkovi s rožným pozemkom, avšak nie je jeho podmienkou.


Autor: Datad
Typ domu: Bungalov
Konštrukcia: Montovaná
Podlažnosť: 1
Počet obytných miestností: 4

Rozmery

Pôdorys domu: Tvar L
Šírka: 13.21 m
Dĺžka: 12.27 m

Plochy

Zastavaná plocha: 141.94 m2
Užitková plocha: 89.87 m2
Obytná plocha:

Ceny (s DPH)

Cena projektu:
Cena materiálu:
Cena výstavby:
Cena hrubej stavby: 42900€
Cena na kľúč: 77777€

Strecha

Typ strechy: Valbová
Výška hrebeňa:
Sklon strechy:
  • Komín
  • Strešné okno

Miestnosti

  • Šatník ako samostatná miestnosť
  • Technická miestnosť (sklad)
  • Špajza
  • Chodba

Kuchyňa

Tvar kuchynskej linky: V tvare písmena II
  • Barový pult
  • Kuchyňa prepojená s obývačkou
  • Jedáleň vrámci kuchyni

Objekty

  • Francúzske okno

Obývačka

  • Komín pre krb alebo piecku
  • Jedáleň vrámci obývačky

Kúpeľňa

Počet kúpeľní: 1
  • Vaňa
  • Sprchovací kút

WC

Počet WC: 1
  • WC Samostatne

Terasa

  • Terasa
  • Prekrytie terasy

Garáž

  • Garáž





IdealnyProjekt.sk nie je majiteľom tohto projektu. Pre jeho zakúpenie, prosím kontaktujte jeho autora. Všetky parametre domu boli čerpané zo stránok autora projektu a majú len informačný charakter.Podrobné informácie ako sme kategorizovali jednotlivé domy nájdete na tejto stránke.
0 replies

Leave a Reply

Want to join the discussion?
Feel free to contribute!

Leave a Reply

Your email address will not be published. Required fields are marked *

This site uses Akismet to reduce spam. Learn how your comment data is processed.