Štokholm
Dom Štokholm svojou architektúrou oslovuje ľudí, ktorí hľadajú výnimočnosť a moderný vzhľad. Interiér dotvárajú rôzne výšky podláh, ktoré elegantne oddeľujú dennú a spánkovú časť domu. Hosťovské WC v dennej časti ocenia všetci majitelia, ktorým záleží na súkromí.
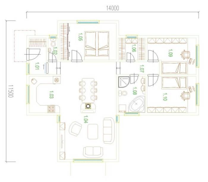
Rozmery
Pôdorys domu: InéŠírka: 14.00 m
Dĺžka: 11.00 m
Plochy
Zastavaná plocha: 116.00 m2Užitková plocha: 100.34 m2
Obytná plocha:
Ceny (s DPH)
Cena projektu: 
Cena materiálu:
Cena výstavby:
Cena materiálu:
Cena výstavby:
Cena hrubej stavby: 
Cena na kľúč: 85300€
Cena na kľúč: 85300€
Strecha
Typ strechy: Plochá
Výška hrebeňa:
Sklon strechy:
Výška hrebeňa:
Sklon strechy:
- Komín
- Strešné okno
Miestnosti
- Šatník ako samostatná miestnosť
- Technická miestnosť (sklad)
- Špajza
- Chodba
Kuchyňa
Tvar kuchynskej linky: V tvare písmena U- Barový pult
- Kuchyňa prepojená s obývačkou
- Jedáleň vrámci kuchyni
Objekty
- Francúzske okno
Obývačka
- Komín pre krb alebo piecku
- Jedáleň vrámci obývačky
Kúpeľňa
Počet kúpeľní: 1- Vaňa
- Sprchovací kút
WC
Počet WC: 2- WC Samostatne
Terasa
- Terasa
Garáž
- Garáž

Leave a Reply
Want to join the discussion?Feel free to contribute!