RD 203
Rozmery
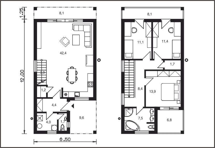
Pôdorys domu: ObdĺžnikŠírka: 12.00 m
Dĺžka: 6.50 m
Plochy
Zastavaná plocha: 86.10 m2Užitková plocha: 111.60 m2
Obytná plocha: 78.80 m2
Ceny (s DPH)
Cena projektu: 1632€
Cena materiálu:
Cena výstavby: 156000€
Cena materiálu:
Cena výstavby: 156000€
Cena hrubej stavby: 
Cena na kľúč:
Cena na kľúč:
Strecha
Typ strechy: Pultová
Výška hrebeňa: 6.600 m
Sklon strechy: 2.0°
Výška hrebeňa: 6.600 m
Sklon strechy: 2.0°
- Komín
- Strešné okno
- Vikier
Miestnosti
- Izba (hosťovská) na prízemí
- Šatník ako samostatná miestnosť
- Technická miestnosť (sklad)
- Špajza
- Chodba
Kuchyňa
Tvar kuchynskej linky: V tvare písmena L- Barový pult
- Kuchyňa prepojená s obývačkou
- Jedáleň vrámci kuchyni
Objekty
- Francúzske okno
- Galéria
- Balkón
Obývačka
- Komín pre krb alebo piecku
- Jedáleň vrámci obývačky
Kúpeľňa
Počet kúpeľní: 2- Kúpelňa na prízemí
- Vaňa
- Sprchovací kút
WC
Počet WC: 2- WC Samostatne
Terasa
- Terasa
- Prekrytie terasy
Garáž
- Garáž

Leave a Reply
Want to join the discussion?Feel free to contribute!