Modern
Rodinný dom Premium 1 je moderný dvojpodlažný rodinný dom so samostatnou garážou pre náročných, ktorí majú radi luxus a pohodlie. Priestranné miestnosti a vybavenie domu ulahodí každej vekovej kategórii.
Dispozičné riešenie domu je kvalitne premyslené. Na prvom nadzemnom podlaží sa nachádza priestranná obývacia izba, kuchyňa s jedálenskou časťou, posilňovňa so saunou a samostatnou kúpeľňou a hosťovská izba so šatníkom a samostatnou kúpeľňou.
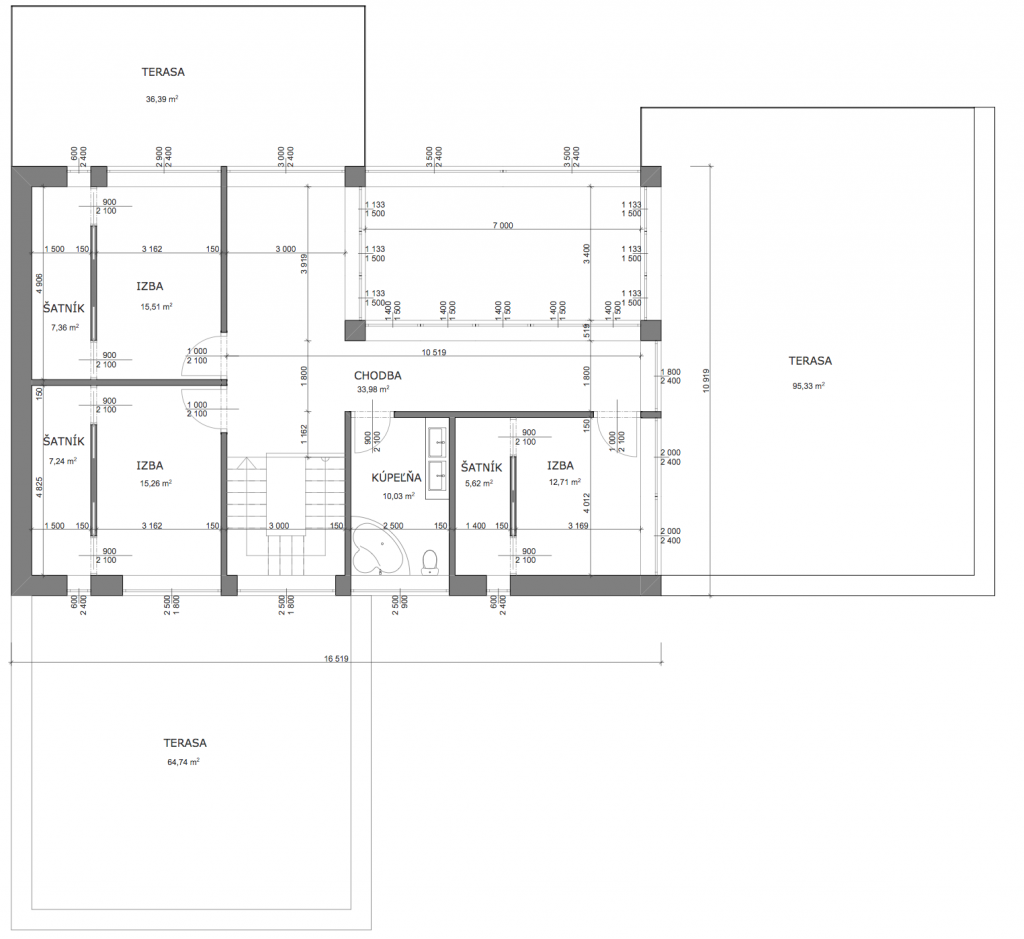
Súkromná časť domu je na druhom nadzemnom podlaží, kde sa nachádzajú 3 veľkoryso riešené izby s vlastnými šatníkmi a jedna priestranná kúpeľňa. Z izieb je možnosť sa dostať na obrovské terasy, ktoré majú rozlohu bytu. Súkromnú časť domu od verejnej časti oddeľuje pravotočivé schodisko.
Dominantou celého domu je presklené átrium, ktoré siaha cez dva podlažia.
Veľké presklené steny nám spoja interiér s exteriérom a umožnia užívať si prírodu z tepla domova nielen v lete ale aj v zimných mesiacoch. Pri výbere tohto domu Vám zaručíme maximálne pohodlie a život v nadštandardnom bývaní.
Rozmery
Pôdorys domu: InéŠírka: 15.00 m
Dĺžka: 25.00 m
Plochy
Zastavaná plocha:Užitková plocha: 542.00 m2
Obytná plocha: 392.00 m2
Ceny (s DPH)
Cena materiálu:
Cena výstavby:
Cena na kľúč: 586093€
Strecha
Výška hrebeňa:
Sklon strechy: 30.0°
- Komín
- Strešné okno
- Vikier
Miestnosti
- Izba (hosťovská) na prízemí
- Šatník ako samostatná miestnosť
- Technická miestnosť (sklad)
- Špajza
- Chodba
Kuchyňa
Tvar kuchynskej linky: V tvare písmena L- Barový pult
- Kuchyňa prepojená s obývačkou
- Jedáleň vrámci kuchyni
Objekty
- Francúzske okno
- Galéria
- Balkón
Obývačka
- Komín pre krb alebo piecku
- Jedáleň vrámci obývačky
Kúpeľňa
Počet kúpeľní: 2- Kúpelňa na prízemí
- Vaňa
- Sprchovací kút
WC
Počet WC: 2- WC Samostatne
Terasa
- Terasa
- Prekrytie terasy
Garáž
- Garáž
Počet aut v garáži: Jedno

Leave a Reply
Want to join the discussion?Feel free to contribute!