Luna
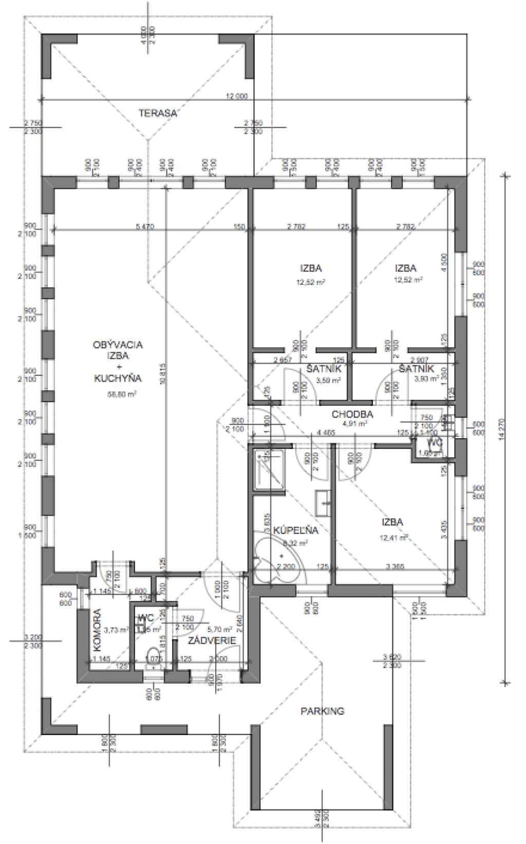
Rodinný dom Luna je jednopodlažný rodinný dom s garážou pre väčšie rodinky, ktoré majú radi priestrannosť a komfort. Dispozičné riešenie domu je dôkladne premyslené. Nočná časť domu je oddelená od dennej časti.
Dennú časť domu tvorí priestranná obývacia izba spojená s kuchyňou a jedálenskou časťou, komora a toaleta s umývadlom. Nočnú časť domu tvorí spálňa rodičov, izby detí, ktoré sú prístupné cez menší šatník, veľká kúpeľňa a samostatná toaleta.
Rozmery
Pôdorys domu: InéŠírka: 12.00 m
Dĺžka: 14.27 m
Plochy
Zastavaná plocha:Užitková plocha: 154.34 m2
Obytná plocha: 131.14 m2
Ceny (s DPH)
Cena projektu: 
Cena materiálu:
Cena výstavby:
Cena materiálu:
Cena výstavby:
Cena hrubej stavby: 
Cena na kľúč: 146629€
Cena na kľúč: 146629€
Strecha
Typ strechy: Valbová
Výška hrebeňa:
Sklon strechy: 28.0°
Výška hrebeňa:
Sklon strechy: 28.0°
- Komín
- Strešné okno
Miestnosti
- Šatník ako samostatná miestnosť
- Technická miestnosť (sklad)
- Špajza
- Chodba
Kuchyňa
Tvar kuchynskej linky:- Barový pult
- Kuchyňa prepojená s obývačkou
- Jedáleň vrámci kuchyni
Objekty
- Francúzske okno
Obývačka
- Komín pre krb alebo piecku
- Jedáleň vrámci obývačky
Kúpeľňa
Počet kúpeľní: 1- Vaňa
- Sprchovací kút
WC
Počet WC: 2- WC Samostatne
Terasa
- Terasa
- Prekrytie terasy
Garáž
- Garáž
Počet aut v garáži: Jedno

Leave a Reply
Want to join the discussion?Feel free to contribute!