Locus 113 B2
Rozmery
Pôdorys domu: ObdĺžnikŠírka: 6.90 m
Dĺžka: 12.90 m
Plochy
Zastavaná plocha: 78.70 m2Užitková plocha: 118.90 m2
Obytná plocha:
Ceny (s DPH)
Cena projektu: 
Cena materiálu:
Cena výstavby:
Cena materiálu:
Cena výstavby:
Cena hrubej stavby: 
Cena na kľúč: 114756€
Cena na kľúč: 114756€
Strecha
Typ strechy: Sedlová
Výška hrebeňa:
Sklon strechy:
Výška hrebeňa:
Sklon strechy:
- Komín
- Strešné okno
- Vikier
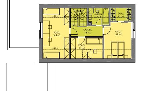
Miestnosti
- Izba (hosťovská) na prízemí
- Šatník ako samostatná miestnosť
- Technická miestnosť (sklad)
- Špajza
- Chodba
Kuchyňa
Tvar kuchynskej linky: V tvare písmena I- Barový pult
- Kuchyňa prepojená s obývačkou
- Jedáleň vrámci kuchyni
Objekty
- Francúzske okno
- Galéria
- Balkón
Obývačka
- Komín pre krb alebo piecku
- Jedáleň vrámci obývačky
Kúpeľňa
Počet kúpeľní: 2- Kúpelňa na prízemí
- Vaňa
- Sprchovací kút
WC
Počet WC: 2- WC Samostatne
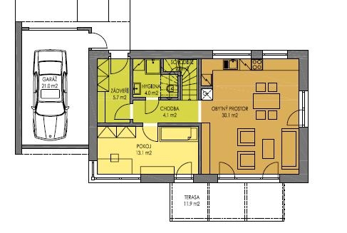
Terasa
- Terasa
- Prekrytie terasy
Garáž
- Garáž
Počet aut v garáži: Jedno

Leave a Reply
Want to join the discussion?Feel free to contribute!