Katka
Rozmery
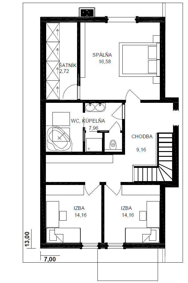
Pôdorys domu: ObdĺžnikŠírka: 7.00 m
Dĺžka: 13.00 m
Plochy
Zastavaná plocha:Užitková plocha: 138.20 m2
Obytná plocha:
Ceny (s DPH)
Cena projektu: 
Cena materiálu:
Cena výstavby:
Cena materiálu:
Cena výstavby:
Cena hrubej stavby: 47290€
Cena na kľúč: 79972€
Cena na kľúč: 79972€
Strecha
Typ strechy: Sedlová
Výška hrebeňa:
Sklon strechy:
Výška hrebeňa:
Sklon strechy:
- Komín
- Strešné okno
- Vikier
Miestnosti
- Izba (hosťovská) na prízemí
- Šatník ako samostatná miestnosť
- Technická miestnosť (sklad)
- Špajza
- Chodba
Kuchyňa
Tvar kuchynskej linky:- Barový pult
- Kuchyňa prepojená s obývačkou
- Jedáleň vrámci kuchyni
Objekty
- Francúzske okno
- Galéria
- Balkón
Obývačka
- Komín pre krb alebo piecku
- Jedáleň vrámci obývačky
Kúpeľňa
Počet kúpeľní: 1- Kúpelňa na prízemí
- Vaňa
- Sprchovací kút
WC
Počet WC: 2- WC Samostatne
Terasa
- Terasa
- Prekrytie terasy
Garáž
- Garáž
Počet aut v garáži: Jedno

Leave a Reply
Want to join the discussion?Feel free to contribute!