Drevenica
Rozmery
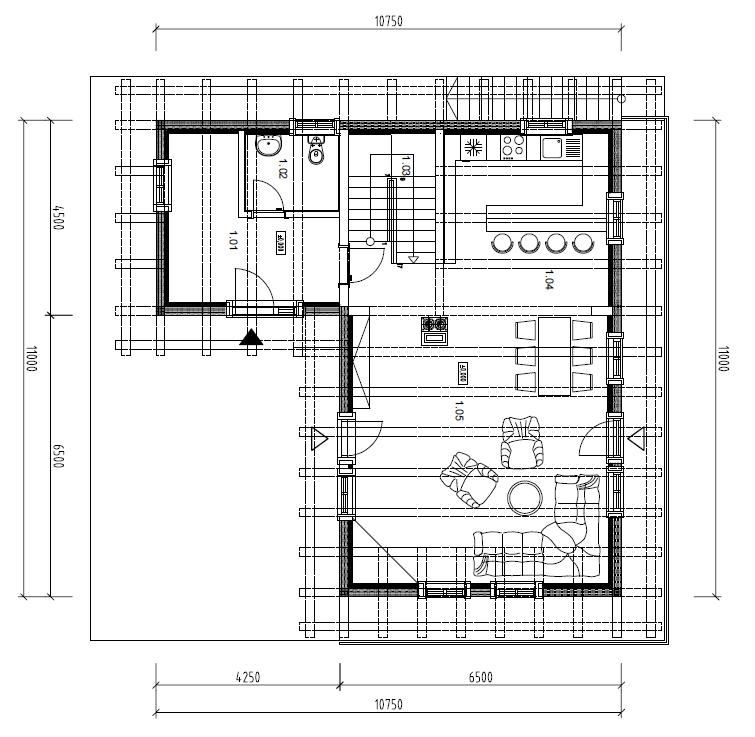
Pôdorys domu: ŠtvorecŠírka: 10.65 m
Dĺžka: 10.90 m
Plochy
Zastavaná plocha: 116.09 m2Užitková plocha: 251.96 m2
Obytná plocha: 96.73 m2
Ceny (s DPH)
Cena projektu: 
Cena materiálu:
Cena výstavby:
Cena materiálu:
Cena výstavby:
Cena hrubej stavby: 
Cena na kľúč:
Cena na kľúč:
Strecha
Typ strechy: Sedlová
Výška hrebeňa:
Sklon strechy:
Výška hrebeňa:
Sklon strechy:
- Komín
- Strešné okno
- Vikier
Miestnosti
- Izba (hosťovská) na prízemí
- Šatník ako samostatná miestnosť
- Technická miestnosť (sklad)
- Špajza
- Chodba
Kuchyňa
Tvar kuchynskej linky: V tvare písmena L- Barový pult
- Kuchyňa prepojená s obývačkou
- Jedáleň vrámci kuchyni
Objekty
- Francúzske okno
- Galéria
- Balkón
Obývačka
- Komín pre krb alebo piecku
- Jedáleň vrámci obývačky
Kúpeľňa
Počet kúpeľní: 2- Kúpelňa na prízemí
- Vaňa
- Sprchovací kút
WC
Počet WC: 2- WC Samostatne
Terasa
- Terasa
Garáž
- Garáž

Leave a Reply
Want to join the discussion?Feel free to contribute!