Karolína
Rozmery
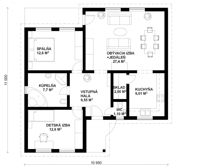
Pôdorys domu: ŠtvorecŠírka: 11.00 m
Dĺžka: 9.00 m
Plochy
Zastavaná plocha: 95.70 m2Užitková plocha: 77.19 m2
Obytná plocha:
Ceny (s DPH)
Cena materiálu:
Cena výstavby:
Cena na kľúč: 71500€
Strecha
Výška hrebeňa:
Sklon strechy:
- Komín
- Strešné okno
Miestnosti
- Šatník ako samostatná miestnosť
- Technická miestnosť (sklad)
- Špajza
- Chodba
Kuchyňa
Tvar kuchynskej linky: V tvare písmena L- Barový pult
- Kuchyňa prepojená s obývačkou
- Jedáleň vrámci kuchyni
Objekty
- Francúzske okno
Obývačka
- Komín pre krb alebo piecku
- Jedáleň vrámci obývačky
Kúpeľňa
Počet kúpeľní: 1- Vaňa
- Sprchovací kút
WC
Počet WC: 1- WC Samostatne
Terasa
- Terasa
Garáž
- Garáž
