Bungalov 6D
Podlažnosť: 1
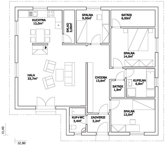
Počet obytných miestností: 4
Počet obytných miestností: 4
Rozmery
Pôdorys domu: ŠtvorecŠírka: 11.40 m
Dĺžka: 12.80 m
Plochy
Zastavaná plocha:Užitková plocha: 118.60 m2
Obytná plocha:
Ceny (s DPH)
Cena projektu: 
Cena materiálu:
Cena výstavby:
Cena materiálu:
Cena výstavby:
Cena hrubej stavby: 40335€
Cena na kľúč: 65422€
Cena na kľúč: 65422€
Strecha
Typ strechy: Valbová
Výška hrebeňa:
Sklon strechy:
Výška hrebeňa:
Sklon strechy:
- Komín
- Strešné okno
Miestnosti
- Šatník ako samostatná miestnosť
- Technická miestnosť (sklad)
- Špajza
- Chodba
Kuchyňa
Tvar kuchynskej linky: V tvare písmena L- Barový pult
- Kuchyňa prepojená s obývačkou
- Jedáleň vrámci kuchyni
Objekty
- Francúzske okno
Obývačka
- Komín pre krb alebo piecku
- Jedáleň vrámci obývačky
Kúpeľňa
Počet kúpeľní: 2- Vaňa
- Sprchovací kút
WC
Počet WC: 1- WC Samostatne
Terasa
- Terasa
Garáž
- Garáž

Leave a Reply
Want to join the discussion?Feel free to contribute!