RD 304
Rozmery
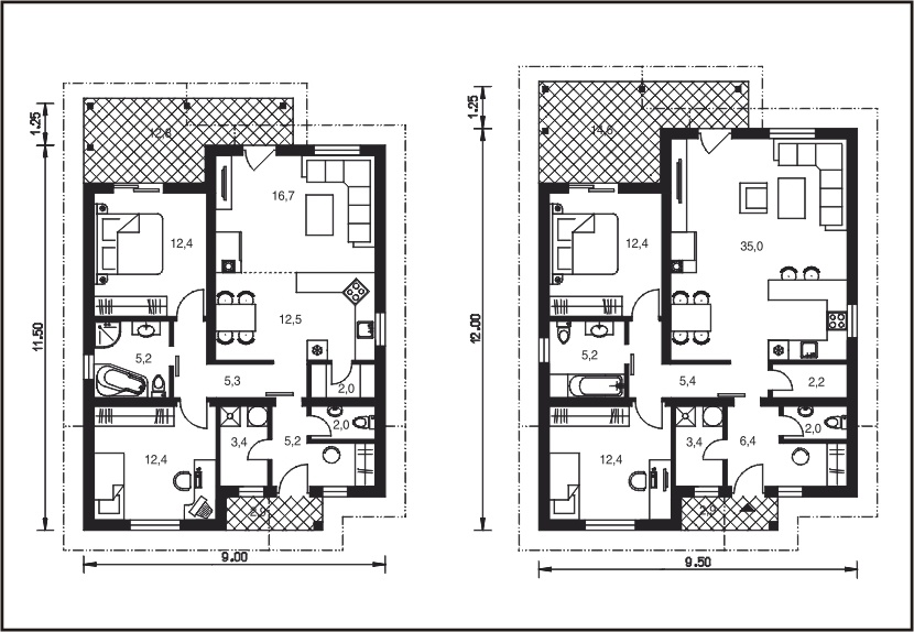
Pôdorys domu: ObdĺžnikŠírka: 9.50 m
Dĺžka: 12.00 m
Plochy
Zastavaná plocha: 110.30 m2Užitková plocha: 77.10 m2
Obytná plocha: 46.00 m2
Ceny (s DPH)
Cena projektu: 640€
Cena materiálu:
Cena výstavby:
Cena materiálu:
Cena výstavby:
Cena hrubej stavby: 74500€
Cena na kľúč:
Cena na kľúč:
Strecha
Typ strechy: Sedlová
Výška hrebeňa: 4.605 m
Sklon strechy: 20.0°
Výška hrebeňa: 4.605 m
Sklon strechy: 20.0°
- Komín
- Strešné okno
Miestnosti
- Šatník ako samostatná miestnosť
- Technická miestnosť (sklad)
- Špajza
- Chodba
Kuchyňa
Tvar kuchynskej linky: V tvare písmena U- Barový pult
- Kuchyňa prepojená s obývačkou
- Jedáleň vrámci kuchyni
Objekty
- Francúzske okno
Obývačka
- Komín pre krb alebo piecku
- Jedáleň vrámci obývačky
Kúpeľňa
Počet kúpeľní: 1- Vaňa
- Sprchovací kút
WC
Počet WC: 2- WC Samostatne
Terasa
- Terasa
- Prekrytie terasy
Garáž
- Garáž

Leave a Reply
Want to join the discussion?Feel free to contribute!