Dessert
Rozmery
Pôdorys domu: ŠtvorecŠírka: 8.20 m
Dĺžka: 8.00 m
Plochy
Zastavaná plocha: 65.60 m2Užitková plocha: 95.90 m2
Obytná plocha: 74.00 m2
Ceny (s DPH)
Cena materiálu:
Cena výstavby:
Cena na kľúč: 89258€
Strecha
Výška hrebeňa:
Sklon strechy:
- Komín
- Strešné okno
- Vikier
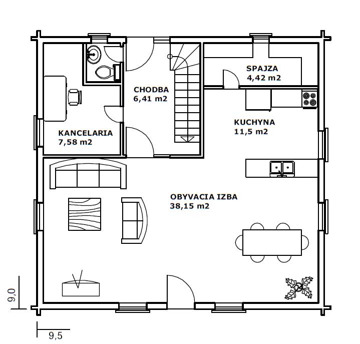
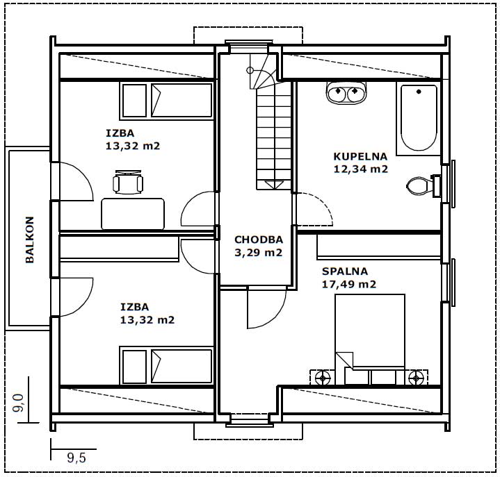
Miestnosti
- Izba (hosťovská) na prízemí
- Šatník ako samostatná miestnosť
- Technická miestnosť (sklad)
- Špajza
- Chodba
Kuchyňa
Tvar kuchynskej linky: V tvare písmena U- Barový pult
- Kuchyňa prepojená s obývačkou
- Jedáleň vrámci kuchyni
Objekty
- Francúzske okno
- Galéria
- Balkón
Obývačka
- Komín pre krb alebo piecku
- Jedáleň vrámci obývačky
Kúpeľňa
Počet kúpeľní: 1- Kúpelňa na prízemí
- Vaňa
- Sprchovací kút
WC
Počet WC: 2- WC Samostatne
Terasa
- Terasa
- Prekrytie terasy
Garáž
- Garáž
