O120
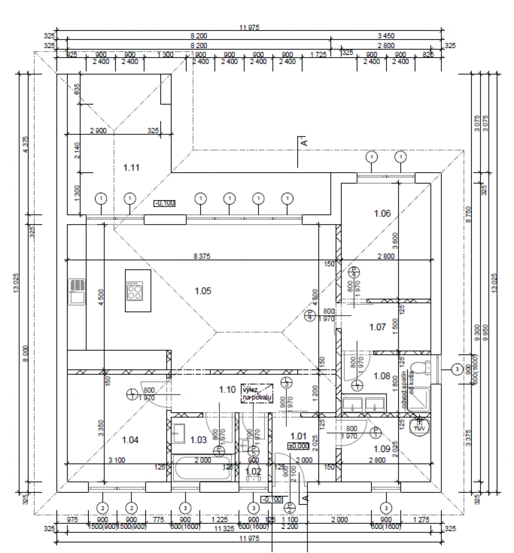
Ideálna veľkosť izieb, dostatok úložných priestorov a prekrytie terasy zabezpečuje, že tento bungalov je ideálnym kandidátom pre nároky na bývanie dnešnej doby. Pôdorysne je dom delený na dennú a nočnú časť, čo zabezpečuje vyššiu mieru súkromia jeho obyvateľom. Obývacia izba je orientovaná do záhrady a zároveň je z nej prístupná aj terasa domu. Kuchyňa má okno orientované do ulice s výhľadom na vstup do objektu a prislúcha k nej priestor špajze, ktorý je priamo vetraný pomocou okna na fasáde. Samotnú kuchyňu možno, v prípade záujmu, ľahko stavebne oddeliť od obývacej izby. Dom je možné objednať aj vo variante s plochou strechou.
Rozmery
Pôdorys domu: InéŠírka: 13.20 m
Dĺžka: 11.70 m
Plochy
Zastavaná plocha: 149.42 m2Užitková plocha: 120.12 m2
Obytná plocha: 75.07 m2
Ceny (s DPH)
Cena projektu: 1100€
Cena materiálu:
Cena výstavby:
Cena materiálu:
Cena výstavby:
Cena hrubej stavby: 
Cena na kľúč: 115000€
Cena na kľúč: 115000€
Strecha
Typ strechy: Valbová
Výška hrebeňa: 5.275 m
Sklon strechy: 16.0°
Výška hrebeňa: 5.275 m
Sklon strechy: 16.0°
- Komín
- Strešné okno
Miestnosti
- Šatník ako samostatná miestnosť
- Technická miestnosť (sklad)
- Špajza
- Chodba
Kuchyňa
Tvar kuchynskej linky: V tvare písmena L- Barový pult
- Kuchyňa prepojená s obývačkou
- Jedáleň vrámci kuchyni
Objekty
- Francúzske okno
Obývačka
- Komín pre krb alebo piecku
- Jedáleň vrámci obývačky
Kúpeľňa
Počet kúpeľní: 1- Vaňa
- Sprchovací kút
WC
Počet WC: 2- WC Samostatne
Terasa
- Terasa
- Prekrytie terasy
Garáž
- Garáž
